Plot with Ready Building Permit and Pool in Vamos – Gavalochori Area
OFFER ID: BS-6538
Details
Price140 000 €
Description
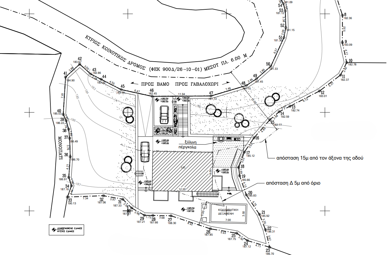
A plot of 1,799.5 m² for sale in the sought-after area between Vamos and Gavalochori. The property comes with a ready building permit for a single residence of 173.46 m² and a private swimming pool of 24.50 m², saving valuable time and effort in the construction process.
The location combines the tranquility of a traditional village setting with close proximity to shops, tavernas, and all amenities, making it ideal for either a permanent residence or a holiday home.
Distances:
-
1 km from Vamos (health center, shops, services)
-
2 km from Gavalochori
-
4 km from Almyrida beach
-
8 km from Georgioupolis
-
25 km from Chania city
-
32 km from Chania International Airport (CHQ)
-
18 km from Souda port
A ready-to-build plot in one of the most desirable areas of Apokoronas, offering a great opportunity for immediate development.
